€ 115.000
EDIFICIO in VENDITA a ROVELLO PORRO
115.000
450 Mq
Edificio
Da costruire
DETTAGLI
Metri Quadri450
Piano2
BoxDa costruire
LocaliALTRO
ZonaFNM
ContestoTerra cielo da ristrutturare
Anno1950
AscensoreNo
Spese CondominialiNo
ConsegnaRogito
C.Rif.CROV115
Classe Energetica: In attesa di certificazione
DESCRIZIONE
Rovello Porro
A due passi dalla stazione FNM, comodo l’ingresso autostradale ed il centro paese, proponiamo un intero cortile completamente da ristrutturare e riqualificare.
Questa soluzione è l’ideale sia per operatori immobiliari che per imprese edili interessate a interventi di recupero e valorizzazione del patrimonio esistente.
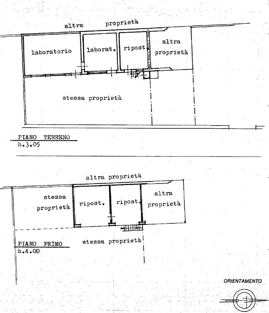
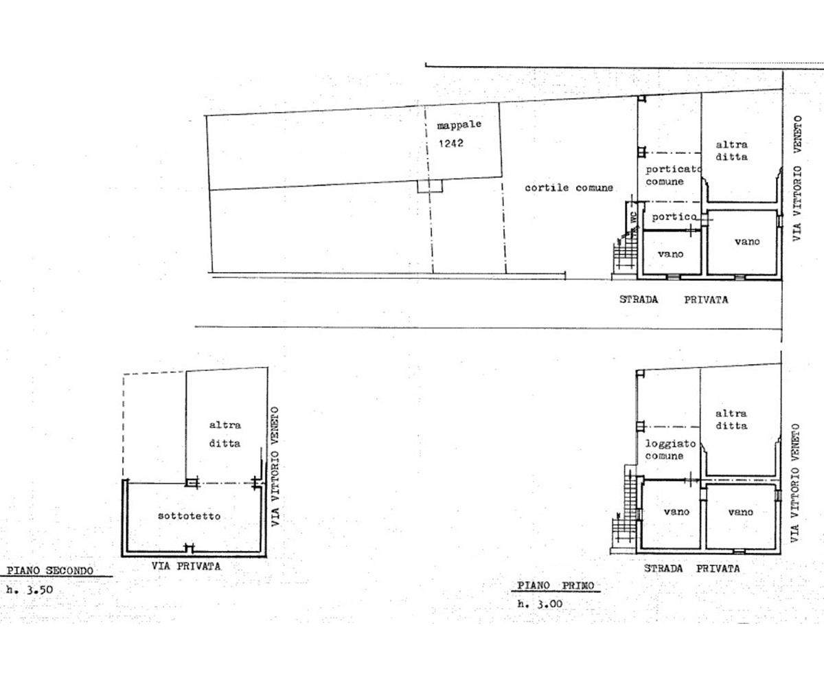
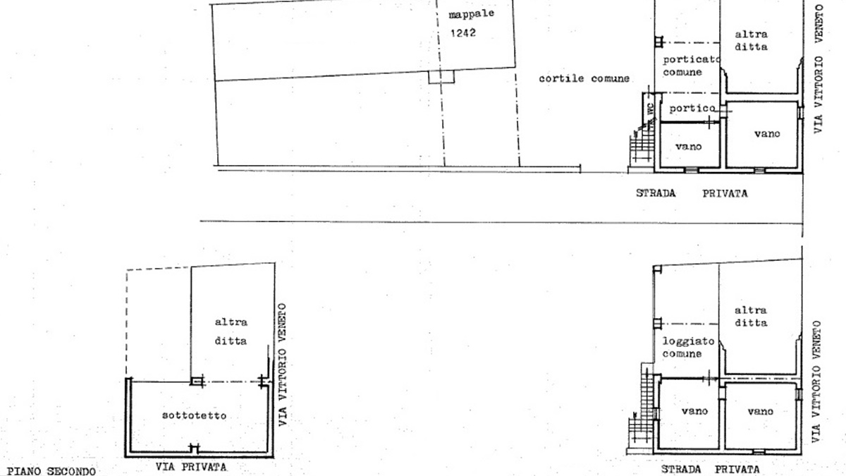
Il compendio immobiliare si divide in due corpi di fabbricati con un cortile privato;
a) La prima parte disposta su 2 livelli per un totale di 300 mq c.a. già accatastato come residenziale, e con la possibilità di recuperare un ulteriore piano.
b) Nella seconda parte troviamo un fabbricato accatastato come deposito/magazzino, con la possibilità di effettuare un cambio di destinazione d’uso a residenziale (dove creare appartamenti o villette)

Il tutto salvo verifica da parte di un tecnico presso gli uffici preposti
Completa la proprietà anche una parte di giardino abbinabile alle future unità immobiliari.
Possibilità di creare i posti auto.
Disponibile inoltre la possibilità di acquisto (non incluse nel prezzo) di n. 5 autorimesse singole recentemente edificate, di circa 15 mq ciascuna.
Libero subito.
MULTIMEDIA IMMOBILIARE
Via Roma 56/B
Saronno (VA)
Tel. 02.96248361 - 340.1161740
I nostri uffici sono aperti:
dal lunedì al venerdì dalle 09.00 alle 12.30 – 14.30 alle 19.30
il sabato dalle 09.00 alle 12.30
il pomeriggio previo appuntamento
RIMANIAMO A VOSTRA COMPLETA DISPOSIZIONE
La localizzazione dell’immobile è approssimativa, ulteriori informazioni e dettagli in studio
L'intero contenuto del presente annuncio (come il testo, le immagini, gli elementi grafici, gli elementi audio, le animazioni e i video in esso contenuti, compresi il logo aziendale) sono di proprietà di MULTIMEDIA IMMOBILIARE. E’ proibito, anche in parte, copiarli, riprodurli, trasferirli, caricarli, pubblicarli o distribuirli in qualsiasi modo senza il preventivo consenso scritto della Società proprietaria. Ogni abuso sarà perseguito davanti al competente Magistrato, incluso il risarcimento del danno.


CHIAMACI
OPPURE SCRIVICI
RESIDENZIALE VENDITA SARONNO ROVELLO PORRO tipologia contratto: tipologia immobile: locali: ufficio:

SOLUZIONI IN EVIDENZA

Alcune delle nostre migliori proposte del momento.

€ 209.000
110 Mq
TRILOCALE in VENDITA a BOLLATE
€ 280.000
146 Mq
QUADRILOCALE in VENDITA a BOVISIO MASCIAGO
€ 375.000
150 Mq
QUADRILOCALE in VENDITA a UBOLDO
€ 149.000
70 Mq
BILOCALE in VENDITA a LEGNANO

© 2025 Multimedia Immobiliare - P.IVA 11097010158