€ 165.000
BILOCALE in VENDITA a SARONNO
165.000
80 Mq
2 locali
posto auto su richiesta
di proprieta da 50 mq
DETTAGLI
Metri Quadri80
PianoTerra+1
Boxposto auto su richiesta
Locali2 locali
RiscaldamentoAutonomo
Balconisi
Giardinodi proprieta da 50 mq
ZonaSampietro
ContestoPiccola palazzina
Anno2024
Ascensoreno
Spese CondominialiNessuna spesa
ConsegnaLibera subito!!
Cantinano
C.Rif.BSAR165
Classe Energetica: D
EP Globale non rinnovabile: 139,00 kWh/m²anno
EP Globale rinnovabile:0 kWh/m²anno
EP invernale del fabbricato:
EP estiva del fabbricato:
Edificio a energia quasi zero: 0
DESCRIZIONE
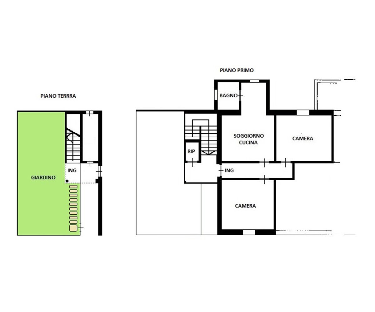
Zona Sampietro, nuova costruzione, in piccola palazzina di 8 famiglie completamente ristrutturata a nuovo in classe energetica A, proponiamo appartamenti di 2 locali così composti: ingresso, soggiorno, cucina abitabile, camera da letto, bagno finestrato e ripostiglio. Completa la soluzione il giardino al piano terra (non direttamente collegato all'appartamento) o il balcone al piano primo. Liberi subito, già rifiniti da capitolato e imbiancati, a partire da 165.000 euro. Possibilità di posto auto interno scoperto. Da vedere!!
CHIAMACI
OPPURE SCRIVICI
RESIDENZIALE VENDITA CESATE SARONNO tipologia contratto: tipologia immobile: locali: ufficio:

SOLUZIONI IN EVIDENZA

Alcune delle nostre migliori proposte del momento.

€ 209.000
110 Mq
TRILOCALE in VENDITA a BOLLATE
€ 280.000
146 Mq
QUADRILOCALE in VENDITA a BOVISIO MASCIAGO
€ 375.000
150 Mq
QUADRILOCALE in VENDITA a UBOLDO
€ 149.000
70 Mq
BILOCALE in VENDITA a LEGNANO

© 2025 Multimedia Immobiliare - P.IVA 11097010158