€ 295.000
TRILOCALE in VENDITA a RHO
295.000
90 Mq
3 locali
no
DETTAGLI
Metri Quadri90
Pianodue
Box
Locali3 locali
RiscaldamentoAutonomo a pavimento
Balconiterrazzo
Giardinono
ZonaCentro
ContestoCorte ristrutturata
Anno2023
Ascensoreno
Spese Condominialino
ConsegnaLibera subito
Cantinano
Classe Energetica: A2
EP Globale non rinnovabile: 67,84 kWh/m²anno
EP Globale rinnovabile:4,2 kWh/m²anno
EP invernale del fabbricato:
EP estiva del fabbricato:
Edificio a energia quasi zero: no
DESCRIZIONE
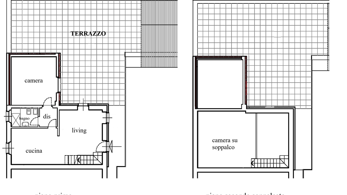
In zona centrale e prettamente residenziale, comoda con tutti i principali servizi, scuole, parchi e la stazione, proponiamo in un piccolo e silenzioso contesto di corte, completamente ristrutturato, soluzione semindipendente disposta su due livelli e composta da: ingresso, soggiorno con cucina a vista, disimpegno, bagno finestrato con doccia e una camera matrimoniale ed entrambi, sia il soggiorno che la camera, affacciano su un ampio terrazzo di 100 mq. Da una bella scala lineare in legno si accede ad un ambiente open, utilizzabile come seconda camera e dove è presente un secondo piccolo servizio. Il tutto è di nuova realizzazione, frutto di ristrutturazione e ampliamento, realizzata con le più moderne tecnologie e dispone di: impianto fotovoltaico, riscaldamento a pavimento radiante in pompa di calore, infissi in pvc triplo vetro con vasistas, aria condizionata e video citofono. Soluzione immobiliare particolare e unica, che può anche essere arricchita e completata da un'ampia autorimessa, dove grazie all’altezza è possibile creare un soppalco ad uso cantina. Non ci sono spese condominiali e la consegna è immediata.
CHIAMACI
OPPURE SCRIVICI
RESIDENZIALE VENDITA RHO RHO tipologia contratto: tipologia immobile: locali: ufficio:

SOLUZIONI IN EVIDENZA

Alcune delle nostre migliori proposte del momento.

€ 209.000
110 Mq
TRILOCALE in VENDITA a BOLLATE
€ 280.000
146 Mq
QUADRILOCALE in VENDITA a BOVISIO MASCIAGO
€ 375.000
150 Mq
QUADRILOCALE in VENDITA a UBOLDO
€ 149.000
70 Mq
BILOCALE in VENDITA a LEGNANO

© 2025 Multimedia Immobiliare - P.IVA 11097010158