€ 225.000
TRILOCALE in VENDITA a VANZAGO
225.000
106 Mq
3 locali
sì doppio in lunghezza a € 10000
condominiale
DETTAGLI
Metri Quadri106
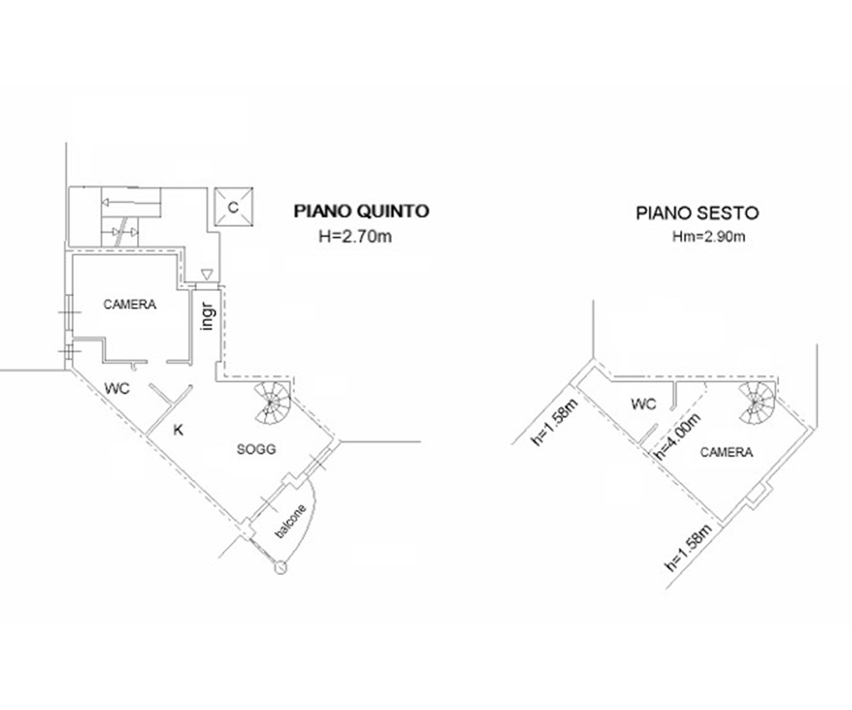
Piano5° e 6°
Boxsì doppio in lunghezza a € 10000
Locali3 locali
Riscaldamentoautonomo
Balconi
Giardinocondominiale
ZonaFilanda
ContestoResidenziale
Anno1999
Ascensore
Spese Condominiali€ 150/mese
ConsegnaLibero marzo 2026
Cantina
Classe Energetica: D
EP Globale non rinnovabile: 121,63 kWh/m²anno
EP Globale rinnovabile:0 kWh/m²anno
EP invernale del fabbricato:
EP estiva del fabbricato:
Edificio a energia quasi zero: 0
DESCRIZIONE
Vanzago, zona Filanda, in contesto tranquillo, nelle immediate vicinanze del parco e a pochi minuti a piedi dalla stazione, servito da tutti i negozi di prima necessità sotto casa, appartamento posto al 5° e 6° piano, che gode di una fantastica vista panoramica e dona luminosità all'intero appartamento. L'immobile è composto da ingresso su disimpegno, che daà accesso al soggiorno con cucina a vista e affaccio su balcone, disimpegno notte che immette nell'ampia camera da letto e al primo bagno finestrato. Da una scala a chiocciola presente nel soggiorno si accede al piano superiore, dove troviamo un ambiente open space adibito a seconda camera e un comodo secondo bagno. Completano la proprietà una cantina e, a parte del prezzo, un comodissimo ed ampio box doppio in lunghezza. L'appartamento è disponibile entro il 30 marzo 2026.
CHIAMACI
OPPURE SCRIVICI
RESIDENZIALE VENDITA RHO VANZAGO tipologia contratto: tipologia immobile: locali: ufficio:

SOLUZIONI IN EVIDENZA

Alcune delle nostre migliori proposte del momento.

€ 209.000
110 Mq
TRILOCALE in VENDITA a BOLLATE
€ 280.000
146 Mq
QUADRILOCALE in VENDITA a BOVISIO MASCIAGO
€ 375.000
150 Mq
QUADRILOCALE in VENDITA a UBOLDO
€ 225.000
106 Mq
TRILOCALE in VENDITA a VANZAGO

© 2025 Multimedia Immobiliare - P.IVA 11097010158