€ 460.000
VILLA in VENDITA a CISLAGO
460.000
160 Mq
100 locali
Doppio
Privato
DETTAGLI
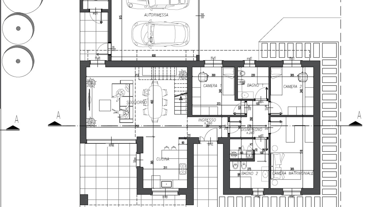
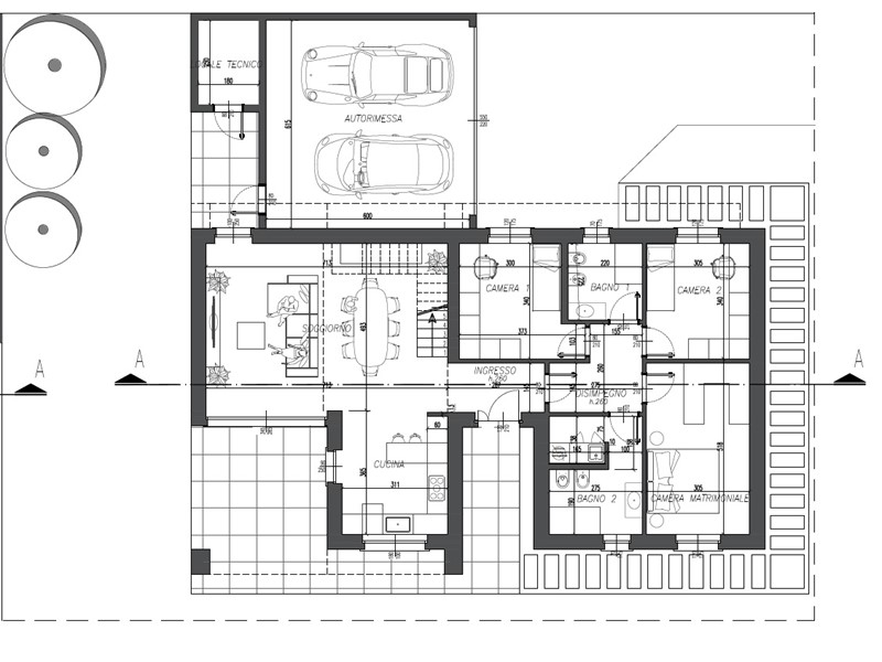
Metri Quadri160
PianoTerra
BoxDoppio
LocaliVILLA
RiscaldamentoAutonomo
BalconiNo
GiardinoPrivato
ContestoVilla singola
Anno2024
AscensoreNo
Spese CondominialiNessuna
ConsegnaRogito
CantinaNo
C.Rif.VUB460
Classe Energetica: In attesa di certificazione
DESCRIZIONE
Cislago
Zona residenziale
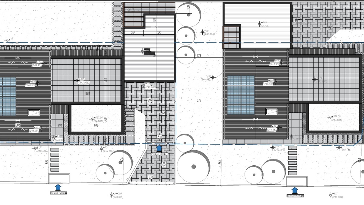
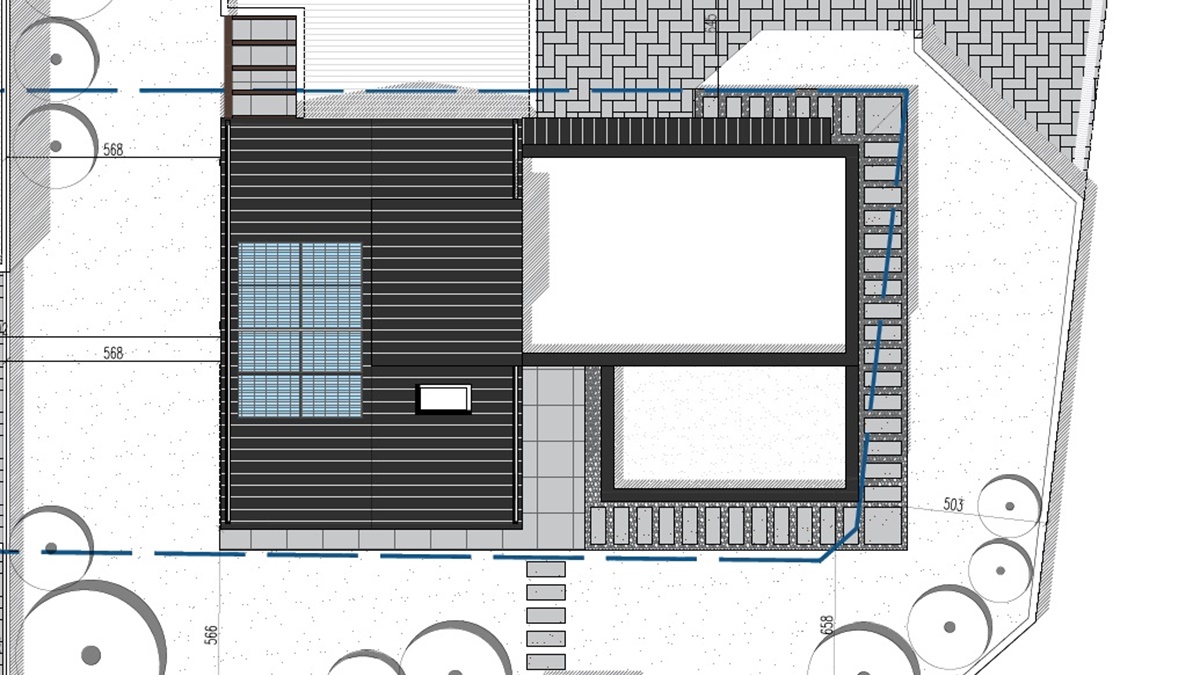
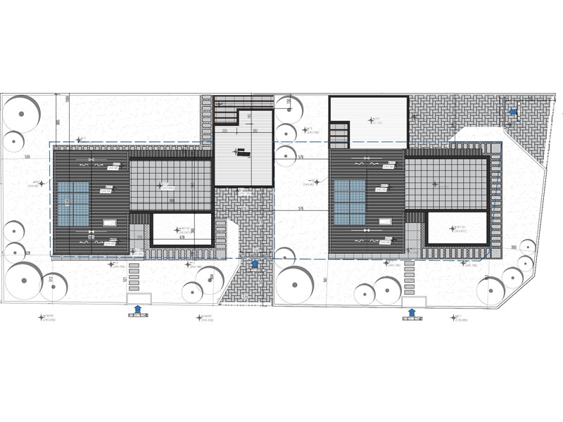
VILLA SINGOLA DI NUOVA COSTRUZIONE su unico livello di ampia metratura
COMPLETAMENTE INDIPENDENTE
- POSSIBILITA’ PERSONALIZZAZIONE DEGLI AMBIENTI e MISURE INTERNE
L’intervento è improntato sul risparmio energetico ed è caratterizzato dall'uso di energia rinnovabile, senza più l’uso del GAS.
una casa super efficiente, a consumo quasi zero, in grado di soddisfare le esigenze sempre maggiori dell’uomo rispettando e valorizzando l’ambiente.
Un nuovo modo di concepire la casa attraverso un'architettura dallo stile contemporaneo che si esprime in termini di forma, colore, materia ed eco-sostenibilità
Alcuni esempi:

-Riscaldamento a pavimento
-Impianto fotovoltaico da 6 kw
-Full Elettrico, No Gas
-Serramenti di ultima generazione, certificati acustica e termica
-Tapparelle motorizzate in alluminio
-Predisposizione Antifurto perimetrale e volumetrico
-Portoncino blindato con serratura a cilindro europeo
-Possibilità Camino
-Possibilità Piscina (extra capitolato)

Classe energetica prevista ”A4”
MULTIMEDIA IMMOBILIARE
Via Roma 56/B
Saronno (VA)
Tel. 02.96248361 - 340.1161740
I nostri uffici sono aperti:
dal lunedì al venerdì dalle 09.00 alle 12.30 – 14.30 alle 19.30
il sabato dalle 09.00 alle 12.30
il pomeriggio previo appuntamento
RIMANIAMO A VOSTRA COMPLETA DISPOSIZIONE
La localizzazione dell’immobile è approssimativa, ulteriori informazioni e dettagli in studio
L'intero contenuto del presente annuncio (come il testo, le immagini, gli elementi grafici, gli elementi audio, le animazioni e i video in esso contenuti, compresi il logo aziendale) sono di proprietà di MULTIMEDIA IMMOBILIARE. E’ proibito, anche in parte, copiarli, riprodurli, trasferirli, caricarli, pubblicarli o distribuirli in qualsiasi modo senza il preventivo consenso scritto della Società proprietaria. Ogni abuso sarà perseguito davanti al competente Magistrato, incluso il risarcimento del danno.
CHIAMACI
OPPURE SCRIVICI
RESIDENZIALE VENDITA SARONNO CISLAGO tipologia contratto: tipologia immobile: locali: ufficio:

SOLUZIONI IN EVIDENZA

Alcune delle nostre migliori proposte del momento.

€ 345.000
180 Mq
QUADRILOCALE in VENDITA a SENAGO
€ 280.000
146 Mq
QUADRILOCALE in VENDITA a BOVISIO MASCIAGO
€ 202.500
45 Mq
EDIFICIO in VENDITA a UBOLDO
€ 235.000
106 Mq
TRILOCALE in VENDITA a VANZAGO

© 2025 Multimedia Immobiliare - P.IVA 11097010158