€ 490.000
VILLA in VENDITA a CESATE
490.000
212 Mq
Villa
Quadruplo
si 218 mq
DETTAGLI
Metri Quadri212
PianoTerra + 1
BoxQuadruplo
LocaliVILLA
RiscaldamentoAutonomo a pavimento
Balconiterrazzo 42 mq
Giardinosi 218 mq
ZonaVigili
ContestoVilla di testa
Anno2025
Ascensoreno
Spese Condominialida definire
ConsegnaEstate 2025!!
Cantinasi, taverna
C.Rif.VC490
Classe Energetica: A3
EP Globale non rinnovabile: 3,51 kWh/m²anno
EP Globale rinnovabile:0,00 kWh/m²anno
EP invernale del fabbricato:
EP estiva del fabbricato:
Edificio a energia quasi zero: 0,00
DESCRIZIONE
NUOVA COSTRUZIONE RESIDENZA CARLA!! CONSEGNA ESTATE 2025!! Classe energetica A!!
Zona vigili, a due passi dal centro e comodo con i principali servizi, proponiamo villa di testa, con possibilità di scelta capitolato, in piccola palazzina di 8 unità.
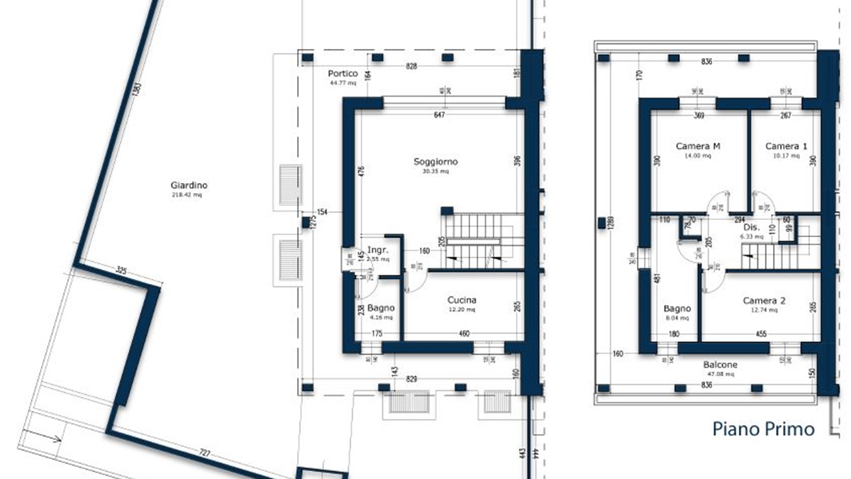
L'immobile è così composto:
piano terra: ingresso su un ampio soggiorno di 30 mq, cucina abitabile, bagno con doccia;
primo piano: tre camere da letto, secondo bagno, terrazzo di 42 mq che circonda la casa;
Completano la soluzione una cantina (taverna) con accesso diretto al box quadruplo (da acquistare a parte) e il giardino di 218 mq.
Rifiniture: impianto di riscaldamento a pavimento, ventilazione meccanica, tapparelle elettriche, sanitari sospesi, videocitofono e predisposizione per antifurto e impianto domotico. L’impianto fotovoltaico alimenterà gli spazi comuni
Possibilità di acquistare un ulteriore box singolo o doppio.

CHIAMACI
OPPURE SCRIVICI
RESIDENZIALE VENDITA CESATE CESATE tipologia contratto: tipologia immobile: locali: ufficio:

SOLUZIONI IN EVIDENZA

Alcune delle nostre migliori proposte del momento.

€ 209.000
110 Mq
TRILOCALE in VENDITA a BOLLATE
€ 280.000
146 Mq
QUADRILOCALE in VENDITA a BOVISIO MASCIAGO
€ 375.000
150 Mq
QUADRILOCALE in VENDITA a UBOLDO
€ 149.000
70 Mq
BILOCALE in VENDITA a LEGNANO

© 2025 Multimedia Immobiliare - P.IVA 11097010158