€ 415.000
VILLA in VENDITA a UBOLDO
415.000
130 Mq
100 locali
Si
Si mq 150
DETTAGLI
Metri Quadri130
Piano2
BoxSi
LocaliVILLA
RiscaldamentoAutonomo
BalconiSi
GiardinoSi mq 150
ZonaMalpaga
ContestoVilla bifamiliare
Anno2025
AscensoreNo
Spese Condominiali0
ConsegnaFine 2026
CantinaNo
C.Rif.VUB415
Classe Energetica: A4
EP Globale non rinnovabile: 3.52 kWh/m²anno
EP Globale rinnovabile:3.52 kWh/m²anno
EP invernale del fabbricato:
EP estiva del fabbricato:
Edificio a energia quasi zero: No
DESCRIZIONE
Ultima porzione Villa Bifamiliare di Nuova Costruzione – Zona Malpaga, Uboldo (VA)
In una zona residenziale tranquilla e ben servita, proponiamo in vendita ultima porzione di esclusiva VILLA BIFAMILIARE di nuova costruzione, progettata per offrire comfort, design moderno e sostenibilità energetica.
Caratteristiche principali:
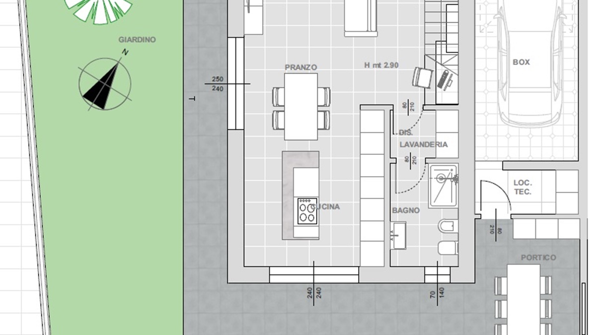
• Superficie commerciale: circa 130 m²
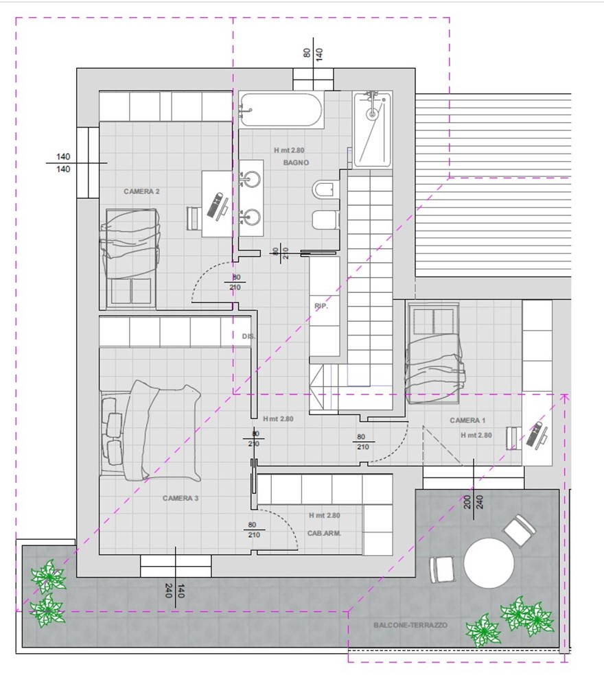
• Disposta su due livelli:
o Piano terra: ampia zona giorno open space con soggiorno e cucina a vista, bagno finestrato, locale lavanderia e accesso diretto al giardino privato
o Piano primo: 3 camere da letto (di cui una matrimoniale con cabina armadio e balcone), secondo bagno finestrato e ripostiglio
• Giardino privato: recintato e ideale per momenti di relax all'aperto
• Box auto: incluso nel prezzo
Tecnologie e comfort:
• Classe energetica A4 – massima efficienza energetica
• Senza gas – soluzione completamente elettrica
• Riscaldamento a pavimento e pompa di calore
• Impianto di ventilazione meccanica controllata canalizzata VMC
• Impianto fotovoltaico per produzione di energia rinnovabile
• Serramenti di ultima generazione con certificazione acustica e termica
• Tapparelle motorizzate in alluminio
• Zanzariere incluse nel prezzo
• Predisposizione per impianto antifurto perimetrale e volumetrico
• Portoncino blindato con serratura a cilindro europeo
• Possibilità di camino e piscina (extra capitolato)
Posizione strategica:
• Zona residenziale di sole ville
• Ottimi collegamenti con le principali vie di comunicazione
• Vicino a scuole, comodo per supermercati e mezzi pubblici
Possibilità di personalizzazione degli interni
Contattaci per maggiori informazioni o per fissare una visita in loco!

CHIAMACI
OPPURE SCRIVICI
RESIDENZIALE VENDITA SARONNO UBOLDO tipologia contratto: tipologia immobile: locali: ufficio:

SOLUZIONI IN EVIDENZA

Alcune delle nostre migliori proposte del momento.

€ 345.000
180 Mq
QUADRILOCALE in VENDITA a SENAGO
€ 280.000
146 Mq
QUADRILOCALE in VENDITA a BOVISIO MASCIAGO
€ 202.500
45 Mq
EDIFICIO in VENDITA a UBOLDO
€ 235.000
106 Mq
TRILOCALE in VENDITA a VANZAGO

© 2025 Multimedia Immobiliare - P.IVA 11097010158